Christopher Birchard / TREC The Real Estate Company
MLS® # A2280605
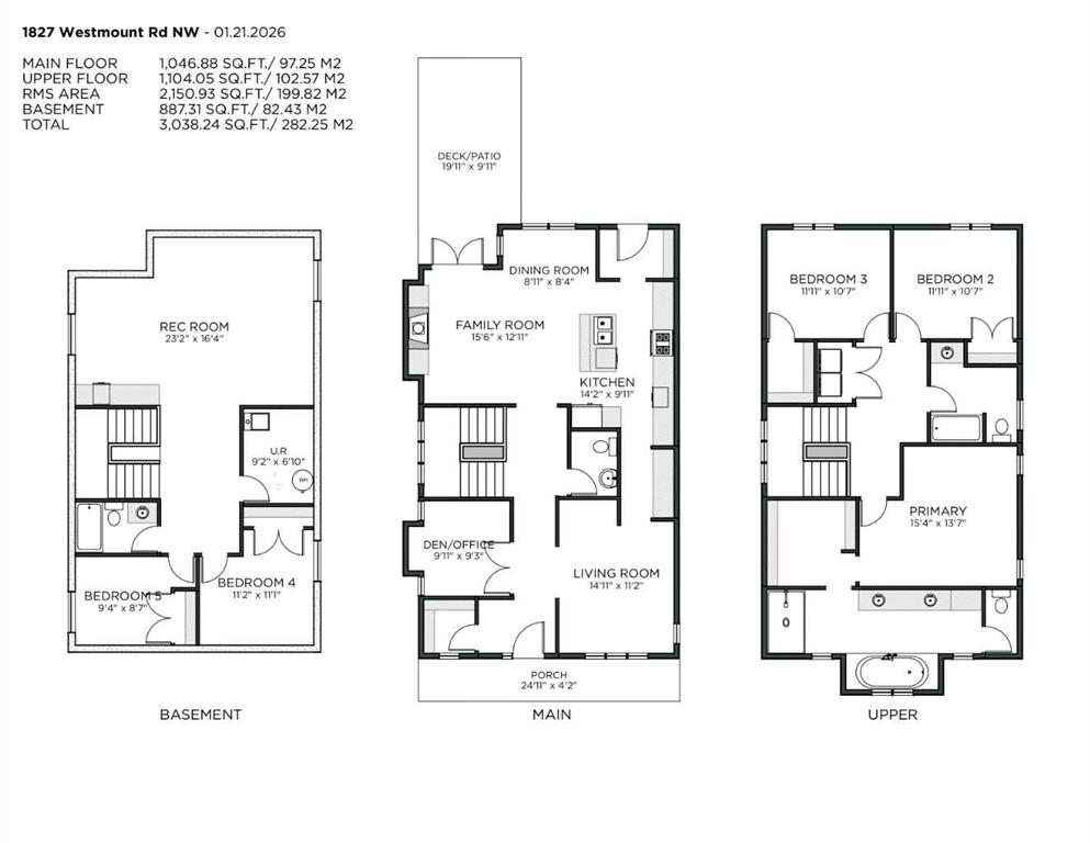
Located on a quiet street in prime Hillhurst, 1827 Westmount Road NW is a meticulously maintained home offering 2,150 sq. ft. above grade (3,038 sq. ft. total) of bright and functional living space. The interior features site-finished hardwood throughout the main and upper floors, providing a seamless transition between the formal front dining room/family room, the private office, and the main living area. The chef’s kitchen is equipped with granite countertops, a gas stove, and a substantial side pantry wi...